Remodelación tienda La Ibérica

Ubicación: Calle Jerusalén, Arequipa, Perú // Año: 2023 // Diseño: Ángela Lombardi, Michael Lanao // Equipo: Valeria Romero, Pamela Rodríguez // Contratistas: SML Constructora // Fotógrafos: Eleazar Cuadros, Anais Rodríguez

En 1909, la familia Vidaurrázaga fundó La Ibérica, iniciando las primeras pruebas de fabricación de chocolate. Posteriormente, adquirieron una casona ubicada en la esquina de las calles San José y Jerusalén, en el centro de Arequipa, donde la fábrica operó durante más de 60 años. En 1992, la producción se trasladó a una nueva ubicación, y la casona quedó con dos de sus ambientes destinados a la tienda principal y el resto se utilizó como almacén.

OBJETIVO

El proyecto busca remodelar parte de la casona para transformarla en una tienda emblemática para la marca. Esta remodelación representa el primer paso de un proyecto integral de puesta en valor de toda la casona.

ESTRATEGIAS

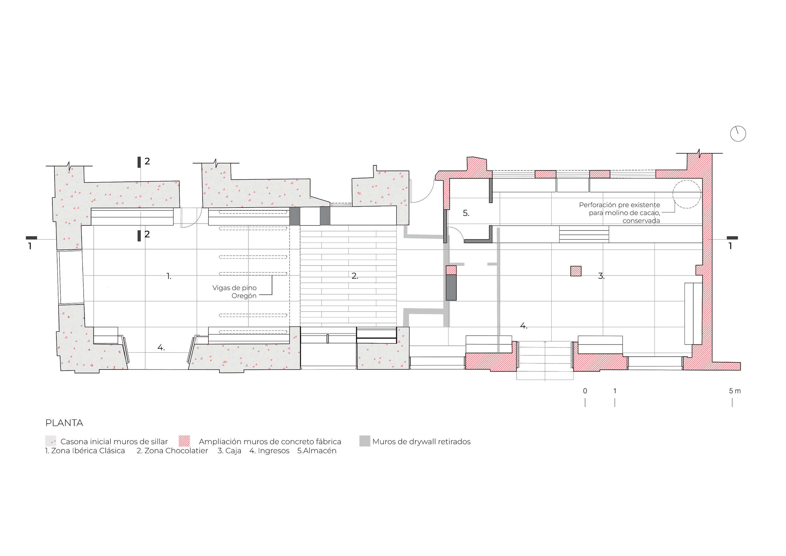
Se adoptaron dos estrategias principales en el diseño. La primera consistió en abrir la casona hacia la calle, ya que muchas de sus ventanas permanecían cerradas. Esta apertura permitió mejorar la relación con el transeúnte, ampliar el espacio de exhibición y revitalizar el edificio, creando un área continua y libre de 120m2. La segunda estrategia se centró en valorar la herencia histórica del edificio en su doble papel como antigua fábrica y emblemática casona de Arequipa.

Se redescubrieron los dos procesos constructivos del edificio, destacando el sillar original, las vigas de rieles y otros elementos arquitectónicos del pasado industrial (vigas de pino Oregón). En las áreas de concreto, se realzaron las marcas dejadas por las antiguas máquinas de la fábrica, estableciendo una conexión visual entre la intervención contemporánea y la historia operativa del espacio.

Para optimizar el área disponible para la tienda, se dividió en tres ambientes: el área de casona con sillar para la exhibición de la línea clásica, una zona central para la exhibición de la línea premium, y un espacio destinado a cajas y venta por impulso. Esta disposición fomenta que los clientes recorran toda la tienda, mejorando la presentación del producto y la experiencia de compra.

MATERIALIDAD

Para las áreas correspondientes a la Ibérica Clásica y a la caja, se seleccionaron tonalidades neutras para el revestimiento del suelo y pintura de paredes. Esta selección busca crear un contraste sutil con el sillar, realzando su valor estético. El mobiliario incorpora elementos contemporáneos en términos de materialidad y color, utilizando planchas de hierro tono rojo inspirado en el “geranio cardenal”, característico de Arequipa. Esta selección refuerza la conexión con el entorno local. Se optó por eliminar los fondos en el mobiliario para mantener las paredes originales de sillar sean visibles, en un gesto de respeto hacia el material histórico de la casona. Para la línea Premium, ubicada en el área central sin paredes de sillar ni marcas de la antigua fábrica, se propuso una cobertura completa en madera cedro para el techo, pisos y mobiliario, con un formato y acabado uniforme. Este revestimiento envolvente del espacio se complementa con planchas de bronce en los fondos del mobiliario, evocando la imagen de una caja de chocolates y enfatizando el carácter distintivo de esta sección de la tienda.

Anterior
Anterior

Casa Azul